Vorige | Volgende

Grenadier Wissestraat 3 Grijpskerke

Bewaar object
Deze woning is verkocht

Omschrijving

Hoogedeure Makelaars Grijpskerke - Grenadier Wissestraat 3 Grijpskerke

Keurig verzorgde tussenwoning in de kern van het dorp Grijpskerke met een op het westen gelegen achtertuin waar u heerlijk van de middag- en avondzon kunt genieten. De woning is gelegen op ca. 154m² eigen grond en beschikt onder andere over een fraaie, moderne keuken en is geheel voorzien van kunststof kozijnen met isolerende beglazing.

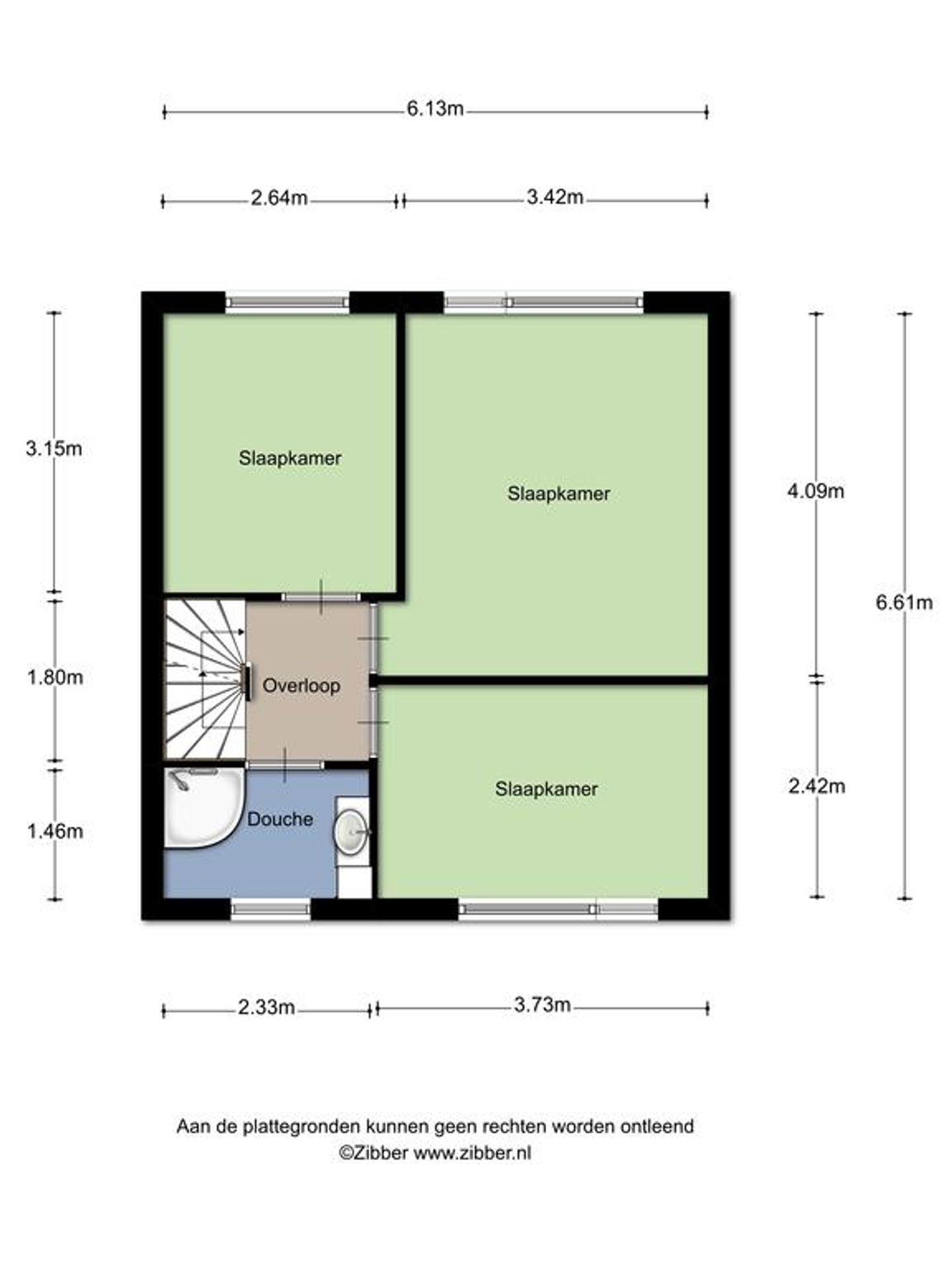
INDELING:

Begane grond:
Entree/hal met meterkast, garderobekast, trapopgang, trapkastje en toiletruimte.
Lichte doorzonwoonkamer met openslaande tuindeuren en achtergelegen modern uitgevoerde open keuken (2010) in hoekopstelling, voorzien van diverse inbouwapparatuur (koelkast/vriezer, vaatwasser, 6-pits gasfornuis met oven, afzuigkap en magnetron) en een mooi composieten werkblad. Vanuit de keuken heeft u toegang tot de achtertuin.

Eerste etage:
Overloop met vaste trap naar de tweede etage en toegang tot een drietal slaapkamers. Één slaapkamer aan de voorzijde (ca. 9m²) en twee slaapkamers aan de achterzijde (ca. 14m² en 8m²). Nette betegelde badkamer met wastafelmeubel, designradiator en kwartronde hoekdouche.

Tweede etage:
Overloop met opstelling van de cv.-installatie, wasmachineaansluiting, dakvenster, bergruimte achter de knieschotten en toegang tot de zolderkamer met dakkapel, dakvenster, inbouwkasten en bergruimte achter de knieschotten.

Tuin:
De tuin is gelegen op het westen en heeft een goede bezonning. Daarnaast beschikt deze over een tweetal bergingen, beide zijn voorzien van elektra. Tevens is er een vrije achterom.

Ligging:
De woning is gelegen in de een rustige straat in de kern van het dorp Grijpskerke en op loopafstand van de voorzieningen in het dorp, o.a. supermarkt, café-restaurant, basisschool, kinderopvang en dorpshuis met gymzaal. Met de fiets staat u binnen 15 minuten (circa 5km afstand) in het centrum van de historische stad Middelburg of op het strand aan de Noordzeekust.

Algemeen:
- Energielabel C;
- Geheel voorzien van kunststof kozijnen, ramen en deuren met isolerende beglazing;
- Cv.- installatie van het merk Remeha, bouwjaar 2010;
- Vernieuwde meterkast met 7 groepen elektra (2010);
- Voorzien van dakisolatie;
- De eerste etage van de woning is voorzien van handmatig bedienbare rolluiken;
- Op de begane grond aan de voorzijde voorzien van sunscreen en aan de achterzijde voorzien van een zonnescherm over nagenoeg de gehele gevelbreedte.


Interesse in deze leuke betaalbare tussenwoning?
Neem voor vragen of het maken van een afspraak voor een bezichtiging contact op met ons kantoor.
Lees de volledige omschrijving

Kenmerken

Overdracht

Aanvaarding
in overleg

Bouw

Soort woning
eengezinswoning
Type woning
tussenwoning
Soort bouw
bestaande bouw
Bouwjaar
1972
In aanbouw
nee

Details

Voorzieningen
buitenzonwering, mechanische ventilatie, rolluiken
Permanente bewoning
ja
Daktype
zadeldak
Dakmateriaal
pannen

Oppervlakten en inhoud

Woonoppervlakte
97 m²
Perceel
154 m²
Inhoud
285 m³

Indeling

Aantal kamers
5
Aantal slaapkamers
4
Aantal etages
3
Aantal badkamers
1
Badkamervoorzieningen
douche, wastafelmeubel
Keuken type
open keuken

Isolatie en verwarming

Isolatievormen
dakisolatie, hr glas
Soort verwarming
cv ketel
Warmwater installatie
cv ketel
Ketel bouwjaar
2010
Ketel type
Remeha
Ketel gas/olie
gas
Ketel eigendom
eigendom

Energielabel

Energielabel
C
Einddatum energielabel
2027-11-15

Kadastrale gegevens

Kadastrale aanduiding
Mariekerke K 314
Oppervlakte
154 m²
Eigendomssituatie
volle eigendom

Buitenruimte

Tuintype(n)
achtertuin, voortuin
Hoofdtuin type
achtertuin
Hoofdtuin achterom
ja
Ligging hoofdtuin
west

Garage

Garagesoorten
geen garage

Parkeergelegenheid

Faciliteit
openbaar parkeren

Schuur/berging

Aantal
2
Soort
vrijstaand steen
Bekijk alle kenmerken

Alle foto's

Deel dit object

interesse gewekt? Of vragen? Neem contact met ons op